HOME
>
PRODUTOS
>
PERFILADOS
> SÉRIE DE BATENTE CL-HH
ÍNDICE
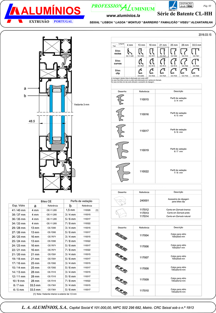
Série de Batente - CL-HH
© Copyright LA Alumínios 2009 All Rights Reserved